Gestallten Sie selbst! Moderne Büroflächen in Top Lage!



Objektart
Büro/Praxen
Objekttyp
Bürofläche
Vermarktungsart
Miete
PLZ
53113
Ort
Bonn
ImmoNr
#1146
Baujahr
2020
Außen-Provision
Ja, siehe AGB
Beschreibung
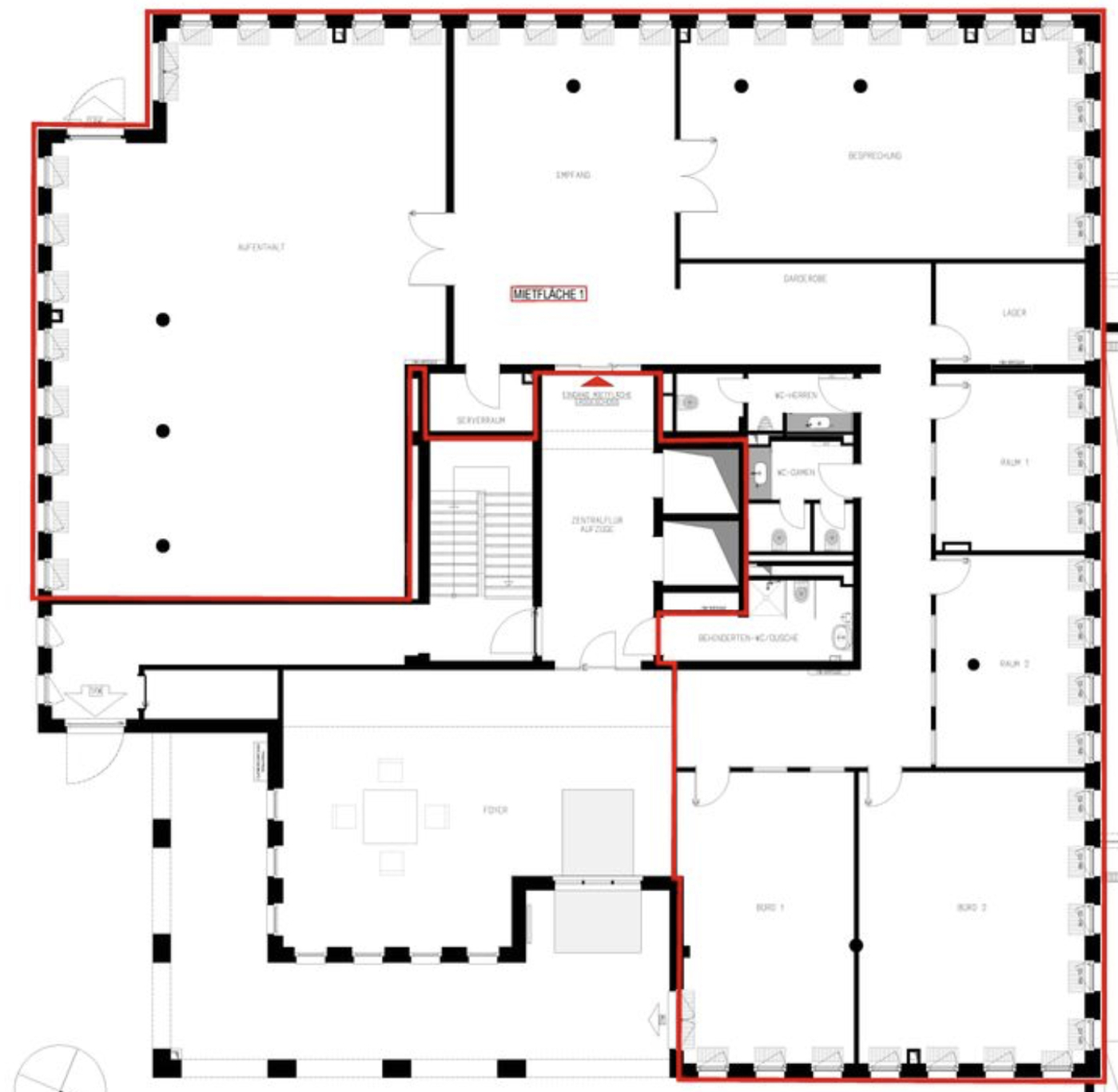
Die Büroflächen sind Teil eines modernen Bürokomplexes und befinden sich im Erdgeschoss sowie im 1. Obergeschoss. Die Flächen können zusammenhängend oder getrennt voneinander angemietet werden. Die Gesamtanmietung beinhaltet eine Gesamtfläche von ca. 1.004 m². Aufgrund der Unterverteilung der Technik ist aber auch eine Teilbarkeit der Mietfläche problemlos möglich, sodass die Mietflächen im ersten Obergeschoss zusammen 573 m² und getrennt voneinander 274 m² und 299 m² aufweisen. Das Erdgeschoss verfügt in Summe über ca. 431 m² und kann nicht weiter unterteilt werden. Die Einheiten verfügen alle über moderne Bürotechnik und sind zeitgemäß ausgestattet. Nach Rücksprache mit der Vermieterseite können Änderungswünsche am Grundrissplan und Anpassungen an der Ausstattung unter Berücksichtigung des Gesamtpakets vorgenommen werden. PKW-Stellplätze stehen in der hauseigenen Tiefgarage zur separaten Anmietung zur Verfügung.Lage
Das Objekt in der Bonner Südstadt im ehemaligen Regierungsviertel. Es besteht eine gute Anbindung an das Autobahnnetz und den ÖPNV. Die nächsten Anschlussstellen des ÖPNV sind in wenigen Minuten erreicht. Die nächsten Anschlussstellen an das Autobahnnetz sind ebenfalls in wenigen Fahrminuten zu erreichen. Kleinere Restaurants und Geschäfte des täglichen Bedarfs sind in fußläufiger Entfernung anzutreffen.Ausstattung
- Verkabelung: Ja, CAT-7-Verkabelung über Hohlraumboden- Klimatisierung: Ja, je nach Etage teilweise
- Barrierefrei: Ja
- Austrittsbereich: Ja
Sonstige Angaben
Diese Immobilie ist Teil unseres umfangreichen Immobilienportfolios. Weitere Angebote finden Sie unter www.thellmann-hre.de oder kontaktieren Sie uns direkt für eine persönliche Auswahl passender Objekte.Sofern nicht ausdrücklich als provisionsfrei gekennzeichnet, fällt bei Abschluss eine Provision gemäß unseren AGB an. Details dazu sowie unsere AGB finden Sie ebenfalls auf unserer Website.
Ein Energieausweis liegt vor, sofern in der Anzeige Angaben gemäß § 16a EnEV enthalten sind. Andernfalls befindet er sich in Vorbereitung.
