FÜR EIGENNUTZER & KAPITALANLEGER: 4-Zimmer Eigentumswohnung in der Südstadt
Exklusiv






Objektart
Wohnung
Objekttyp
Etagenwohnung
Vermarktungsart
Kauf
PLZ
53113
Ort
Bonn
ImmoNr
#1166
Wohnfläche
ca. 100 m²
Anzahl Zimmer
4
Anzahl Badezimmer
1
Kaufpreis
450.000,00 €
Außen-Provision
Ja, siehe AGB
Beschreibung
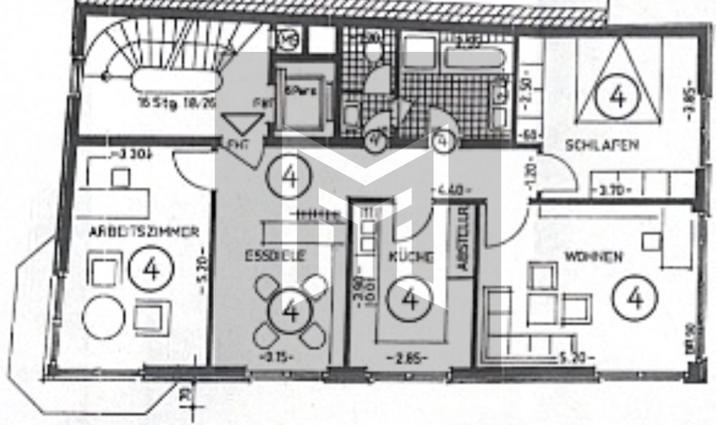
Diese gut geschnittene 4-Zimmer-Wohnung befindet sich im dritten Obergeschoss eines ruhigen Wohn- und Geschäftshaus. Weitere Mieter im Haus sind eine ruhige Physiotherapie-Praxis sowie Wohnungsmieter. Das Objekt besteht aus 5 Einheiten und bietet eine hervorragende Anbindung an den ÖPNV. Die Wohnung wird zum 01.12 vom aktuellen Mieter verlassen und kann sofort neuvermietet oder durch Eigennutzer bezogen werden. Aufgrund der bisherigen Vermietungs- und Eigentumsstruktur wurde kein Hausgeld gezahlt. Im Zuge des Verkaufes wird hier eine entsprechende Abstimmung erfolgen. Die Wohnung verfügt über eine klassische Raumaufteilung, sodass alle Zimmer über den Flur zu betreten sind. Eine Ausnahme ist das Badezimmer, dieses ist lediglich durch das Schlafzimmer zu erreichen. Das Schlafzimmer kann aber auch ohne Probleme als Wohnzimmer genutzt werden, sodass das Bad dann für alle zugänglich ist. Alternativ kann der Zugang über den Flur wieder geöffnet werden. Im gesamten Wohnraum ist ein freundliches und helles Laminat verlegt. Die vom Mieter eingebrachte Einbauküche ist nicht Teil des Kaufvertrages. Badezimmer und Gäste-WC sind mit Fliesen versehen. Durch die vielen Fenster ist der Wohnraum lichtdurchflutet. Der Stellplatz in der hauseigenen Tiefgarage ist zweckgebunden.Diese gepflegte Wohnung bietet eine verlässliche und unkomplizierte Möglichkeit zur Kapitalanlage in einem attraktiven Wohnumfeld, kann bei Bedarf aber auch selbst genutzt werden.
Lage
Das Objekt befindet sich in einer der renommiertesten Lagen von Bonn, auf der Adenauerallee. Die Umgebung zeichnet sich durch eine harmonische Kombination aus historischer Architektur und modernes Ambiente aus. Bonn, als ehemalige Hauptstadt Deutschlands, bietet ein lebendiges und kulturell reiches Umfeld, das sowohl bei Geschäftsleuten als auch bei Bewohnern beliebt ist. Die hervorragende Anbindung an öffentliche Verkehrsmittel macht den Standort äußerst attraktiv für tägliche Pendler und Besucher.Das nahegelegene Zentrum von Bonn ist bekannt für seine Vielzahl an Geschäften, Restaurants und Cafés, die eine einladende Atmosphäre schaffen und zu einem Spaziergang einladen. Die Nähe zum Rhein verleiht der Umgebung einen zusätzlichen Erholungswert, der die Attraktivität doppelt unterstreicht.
Karte
Ausstattung
- Bodenbelag: Laminatboden in allen Wohnbereichen, Fliesen in der Küche, Bad und Gäste-WC- Außenbereich: Nein, keiner vorhanden
- Rollläden: Ja, teilweise
- Mieterkeller: Nein, keiner vorhanden
- Stellplatz: Ja zzgl. 15.000,00 €, in der hauseigenen Tiefgarage (zweckgebunden)
- Heizung: Gas-Zentralheizung
- Wasserversorgung Bad: Durchlauferhitzer
- Wasserversorgung Küche: Untertischgerät
Sonstige Angaben
Diese Immobilie ist Teil unseres umfangreichen Immobilienportfolios. Weitere Angebote finden Sie unter www.thellmann-hre.de oder kontaktieren Sie uns direkt für eine persönliche Auswahl passender Objekte.Sofern nicht ausdrücklich als provisionsfrei gekennzeichnet, fällt bei Abschluss eine Provision gemäß unseren AGB an. Details dazu sowie unsere AGB finden Sie ebenfalls auf unserer Website.
Ein Energieausweis liegt vor, sofern in der Anzeige Angaben gemäß § 16a EnEV enthalten sind. Andernfalls befindet er sich in Vorbereitung.
