Zentral gelegene Gewerbefläche – ideal für Ihr Business!
Exklusiv

Objektart
Laden/Einzelhandel
Vermarktungsart
Miete
PLZ
53111
Ort
Bonn
ImmoNr
#1000E1
Baujahr
1901
Außen-Provision
Ja, siehe AGB
wesentlicher Energieträger
Gas
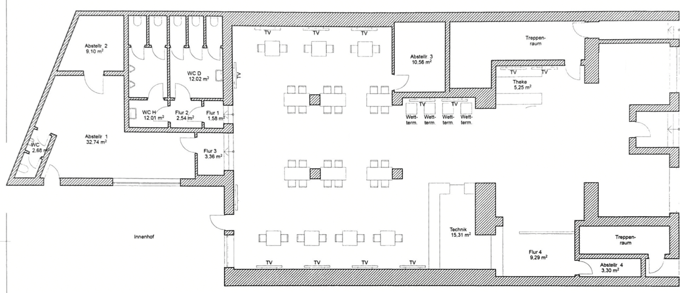
Beschreibung
Die Gewerbefläche befindet sich im Erdgeschoss eines Wohn- und Geschäftshauses. Das Objekt befindet sich in der Bonner Altstadt, unmittelbar am Stadthaus der ehemaligen Bundeshauptstadt Bonn. Die Fußgängerfrequenz ist als hoch zu beschreiben. Die Mietfläche verfügt über ca. 341 m² welche eine flexible Nutzung ermöglicht. Zurzeit wird die Mietfläche als Wettbüro genutzt, andere Nutzungen sind nach Rücksprache mit der Vermieterseite denkbar. Ferner verfügt die Einheit über WC-Einheiten, Teeküchenanschlüsse, Möglichkeiten für ein Backoffice sowie Lagermöglichkeiten innerhalb der Einheit. Die Anbindung an den ÖPNV ist als sehr gut zu beschreiben, die nächsten Bus- und Bahnhaltestellen sind binnen weniger Schritte erreicht. Auch mit dem PKW ist die Immobilie gut zu erreichen. So stehen in der benachbarten Tiefgarage Stellplätze zur separaten Anmietung zur Verfügung. Ergänzend dazu kann in der benachbarten Stadthaus- oder Friedensplatzgarage geparkt werden.Lage
Dieses Wohn- und Geschäftshaus befindet sich in einer der begehrtesten Lagen Bonns. Die Immobilie liegt zentral und in einem etablierten Stadtteil. Die Anbindung an den öffentlichen Nahverkehr ist als sehr gut zu beschreiben. Bus- und Bahnhaltestellen sind in wenigen Schritten erreicht. Ferner ist die Immobilie auch mit dem PKW gut zu erreichen. Restaurants und Geschäfte des täglichen bedarf sind in fußläufiger Entfernung angesiedelt.Ausstattung
- Bodenbelag: Vinyl- Heizung: Gas
- Barrierefrei: nein
- Klimatisiert: Klimaschächte vorhanden
- Be- und Entlüftungsanlage: Ja
Sonstige Angaben
Diese Immobilie ist Teil unseres umfangreichen Immobilienportfolios. Weitere Angebote finden Sie unter www.thellmann-hre.de oder kontaktieren Sie uns direkt für eine persönliche Auswahl passender Objekte.Sofern nicht ausdrücklich als provisionsfrei gekennzeichnet, fällt bei Abschluss eine Provision gemäß unseren AGB an. Details dazu sowie unsere AGB finden Sie ebenfalls auf unserer Website.
Ein Energieausweis liegt vor, sofern in der Anzeige Angaben gemäß § 16a EnEV enthalten sind. Andernfalls befindet er sich in Vorbereitung.
