Gut vermietet: Wohn- und Geschäftshaus in Zentrumslage!
Exklusiv












Objektart
Haus
Objekttyp
Wohn- und Geschäftshaus
Vermarktungsart
Kauf
PLZ
53111
Ort
Bonn
ImmoNr
#1212
Wohnfläche
ca. 451 m²
Grundstücksgröße
ca. 376 m²
Nutzfläche
ca. 110 m²
Kaufpreis
2.756.803,50 €
Baujahr
1956
Außen-Provision
Ja, 4% für den Käufer. Siehe AGB.
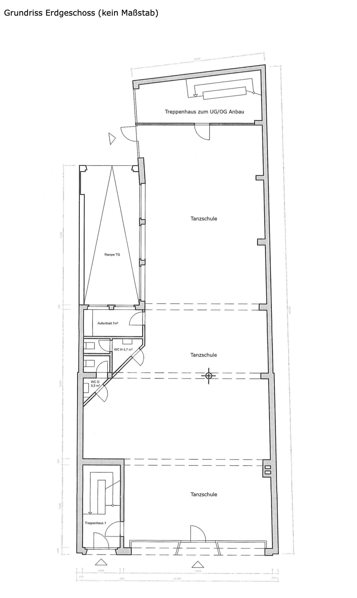
Beschreibung
Das Wohn- und Geschäftshaus wurde auf einem ca. 376 m² großen Grundstück errichtet.Die Liegenschaft ist vollvermietet.
Die Mietfläche von ca. 990,91 m² verteilt sich wie folgt:
• 5 Wohneinheiten mit Balkon / Terrasse
• 1 Gewerbeeinheit im EG
• 1 Gewerbeeinheit als Lager im UG
Zu den Gewerbemietern:
Die Tanzschule im EG hat eine Mietlaufzeit bis zum 31.12.2033 mit einer 2x5 Jahres Option.
Die vorhandene Fläche der ehemaligen Tiefgarage wurde mit einem unbefristeten Mietverhältnis als Lager vermietet.
Die letzte Modernisierung erfolgte in 2025 (Erneuerung der Schaufensterfront im EG).
Die Immobilie wurde laufend instandgehalten.
Lage
Bonn ist eine kreisfreie Großstadt mit ca. 323.336 Einwohnern des Regierungsbezirks Köln und liegt im Süden von Nordrhein-Westfalen.Die Stadt ist Teil der Metropolregion Rhein-Ruhr und des Rheinlandes.
Darüber hinaus ist es ein Hochschulstandort mit ca. 38.146 Studierenden.
Vor der Wiedervereinigung war Bonn die Hauptstadt der BRD. Trotz der Verlegung der Hauptstadt nach Berlin, befinden sich in Bonn weiterhin zahlreiche Ministerien.
Die Stadt ist über die Autobahnen A555, A565 und A59 sowie die B56 an das umliegende Umfeld angeschlossen.
Die Liegenschaft befindet sich in Zentrumslage, einsehbar an der B56.
Die S-Bahnstation „Bertha-von-Suttner-Platz“ ist ca. 160 m entfernt.
Einrichtungen des täglichen Bedarfs sind fußläufig zu erreichen.
Karte
Ausstattung
- Aussenbereich: Ja, Balkon oder Terrasse- Wohneinheiten: 5, vollvermietet
- Gewerbeeinheiten: 2, vollvermietet
- Barrierefrei: EG
Sonstige Angaben
Diese Immobilie ist Teil unseres umfangreichen Immobilienportfolios. Weitere Angebote finden Sie unter www.thellmann-hre.de oder kontaktieren Sie uns direkt für eine persönliche Auswahl passender Objekte.Sofern nicht ausdrücklich als provisionsfrei gekennzeichnet, fällt bei Abschluss eine Provision gemäß unseren AGB an. Details dazu sowie unsere AGB finden Sie ebenfalls auf unserer Website.
Ein Energieausweis liegt vor, sofern in der Anzeige Angaben gemäß § 16a EnEV enthalten sind. Andernfalls befindet er sich in Vorbereitung.
