Wohn -und Geschäftshaus für Kapitalanleger im Bonner Zentrum!
Exklusiv







Objektart
Haus
Objekttyp
Wohn- und Geschäftshaus
Vermarktungsart
Kauf
PLZ
53111
Ort
Bonn
ImmoNr
#1000
Wohnfläche
ca. 566 m²
Grundstücksgröße
ca. 629 m²
Nutzfläche
ca. 186 m²
Kaufpreis
2.650.000,00 €
Baujahr
1901
Energieausweis
es besteht keine Pflicht!
Energieeffizienzklasse
G
Außen-Provision
4% für den Käufer. Siehe AGB.
wesentlicher Energieträger
Gas
Beschreibung
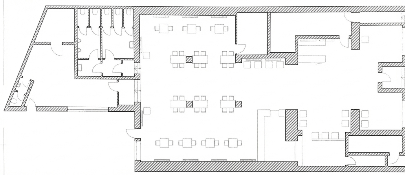
Die Lage des Wohn- und Geschäftshauses ist als A-Lage zu bezeichnen. Die Liegenschaft befindet sich in der Bonner Altstadt - in der Maxstraße, unmittelbar am Stadthaus der ehemaligen Bundeshauptstadt Bonn. Die Fußgängerfrequenz ist als hoch zu beschreiben. Die Lage der Immobilie zeichnet sich durch einen innerstädtischen Mix aus Wohnungen und Geschäften aus. Anbindungen an den ÖPNV sind als sehr gut zu beschreiben, die nächsten Bus- und Bahnhaltestellen sind binnen weniger Schritte erreicht. Die Immobilie beherbergt im UG und im EG je einen Gewerbemieter, versehen mit langfristigen Mietverträgen. Die Flächen werden im UG als Pub und im EG als Billard- und Darts-Club genutzt. Auf den drei weiteren Etagen stehen sechs Wohnungen mit je 60 m² - 70 m² zur Verfügung. Der Zustand und die Ausstattung der Wohnungen sind als gut zu bezeichnen. Eine weitere Wohnung mit ca. 125 m² befindet sich rückwärtig gelegen und ist mitunter das Highlight des Hauses. Ergänzend zum angegebenen Kaufpreis ist mit 9 Stellplätzen zu je 20.000,00 € zu rechnen.Der Billiard- und Darts-Club hat zum 01.02.2026 angemietet und baut zur Zeit um. Das Bild "Gewerbeeinheit EG" dient zur Orientierung.
Lage
Dieses Wohn- und Geschäftshaus befindet sich in einer der begehrtesten Lagen Bonns. Die Immobilie liegt zentral und dennoch ruhig in einem etablierten Stadtteil, der durch seine Vielfalt und Lebendigkeit besticht. Dank der hervorragenden Anbindung an den öffentlichen Nahverkehr sind alle wichtigen Punkte der Stadt schnell und unkompliziert erreichbar. Auch der HBF der Stadt Bonn ist schnell erreicht. Geschäfte des täglichen Bedarfs, gemütliche Cafés, vielfältige Gastronomieangebote sowie renommierte Bildungseinrichtungen finden sich in unmittelbarer Umgebung. Die Nähe zu vielen kulturellen Einrichtungen sowie grünen Rückzugsorten gewährleistet eine hohe Lebensqualität und macht diesen Standort besonders attraktiv für Familien und Berufstätige gleichermaßen. Die ideale Kombination aus urbanem Flair und natürlicher Umgebung schafft eine wohltuende Balance und lädt sowohl zum Arbeiten als auch zum Entspannen ein.Ausstattung
- Bodenbelag: Je nach Einheit Marmor, Laminat, Dielen, Fliesen oder Parkett- Aussenbereich: Ja, je nach Einheit
- Wohneinheiten: 7
- Gewerbeeinheiten: 2
- Stellplatz: 9x Tiefgarage zu je 20.000,00 € (zweckgebunden)
- Heizung: Gas
- Keller: Ja
- Klimatisierung: UG sowie Vorrüstung im
- Barrierefrei: nein
- ENEV: nein
- Denkmalschutz: Ja, Fassade
Sonstige Angaben
Diese Immobilie ist Teil unseres umfangreichen Immobilienportfolios. Weitere Angebote finden Sie unter www.thellmann-hre.de oder kontaktieren Sie uns direkt für eine persönliche Auswahl passender Objekte.Sofern nicht ausdrücklich als provisionsfrei gekennzeichnet, fällt bei Abschluss eine Provision gemäß unseren AGB an. Details dazu sowie unsere AGB finden Sie ebenfalls auf unserer Website.
Ein Energieausweis liegt vor, sofern in der Anzeige Angaben gemäß § 16a EnEV enthalten sind. Andernfalls befindet er sich in Vorbereitung.
