Büroflächen mit guter Anbindung an den ÖPNV

















Objektart
Büro/Praxen
Objekttyp
Bürofläche
Vermarktungsart
Miete
PLZ
53175
Ort
Bonn
ImmoNr
#1247
Außen-Provision
Ja, siehe AGB
Beschreibung
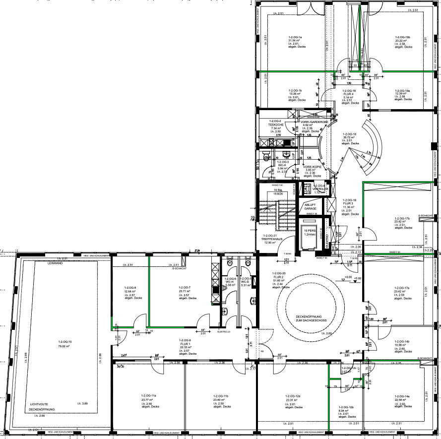
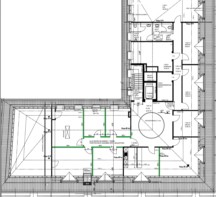
Die vakanten Büroflächen in diesem Bürogebäude befinden sich im 2. OG und im DG. Aufgrund der Gebäudestruktur müssen die beiden Etagen zusammenhängend angemietet werden. Die Gesamtfläche von ca. 800 m² teilt sich auf verschiedene Büroräume in verschiedenen Größen sowie Besprechungsräume auf. Ferner verfügen die Büros über WC-Einheiten und entsprechende Teeküchenanschlüsse. Unter Berücksichtigung des Gesamtpaketes und in Absprache mit der Eigentümerseite können Grundrissaufteilungen und Ausstattungsmerkmale entsprechend angepasst werden.Ergänzend zu den aufgeführten Kosten sind noch Verwaltungskosten i.H.v. 285,00 € zu entrichten.
Lage
Das Objekt liegt in Bonn Hochkreuz und bietet eine sehr gute Infrastruktur. Es besteht eine gute Anbindung an das Autobahnnetz und den ÖPNV. Die nächsten Anschlussstellen des ÖPNV sind in wenigen Minuten erreicht. Die nächsten Anschlussstellen an das Autobahnnetz sind ebenfalls in wenigen Fahrminuten zu erreichen. Kleinere Restaurants und Geschäfte des täglichen Bedarfs sind in fußläufiger Entfernung anzutreffen. Ausreichend PKW-Stellplätze stehen am Objekt zur separaten Anmietung zur Verfügung.Ausstattung
- Verkabelung: Ja, CAT-6-Verkabelung- Barrierefrei: Nein
- Aufzug: Ja, Personenaufzug
- Beleuchtung: Teilweise vorhanden
- PKW-Stellplätze: Ja. zu separaten Anmietung
Sonstige Angaben
Diese Immobilie ist Teil unseres umfangreichen Immobilienportfolios. Weitere Angebote finden Sie unter www.thellmann-hre.de oder kontaktieren Sie uns direkt für eine persönliche Auswahl passender Objekte.Sofern nicht ausdrücklich als provisionsfrei gekennzeichnet, fällt bei Abschluss eine Provision gemäß unseren AGB an. Details dazu sowie unsere AGB finden Sie ebenfalls auf unserer Website.
Ein Energieausweis liegt vor, sofern in der Anzeige Angaben gemäß § 16a EnEV enthalten sind. Andernfalls befindet er sich in Vorbereitung.
